
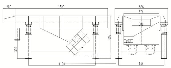
DZSF系列直線篩為雙振動電機驅動。當兩臺振動電機做同步、反向旋轉時,其偏心塊所產生的激振力在平行于電機軸線的方向相互抵消,在垂直于電機軸的方向疊為一合力,因此篩機的運動軌跡為一直線。兩電機軸相對篩面在垂直方向有一傾角,在激振力和物料自重力的合力作用下,物料在篩面上被拋起跳躍或向前作直線運動,從而達到對物料進行篩選和分級的目的。適用于粒度在0.074—5mm,含水量小于7%,無粘性的各種干式粉狀或顆粒狀物料的篩分。大給料粒度不大于10mm.。






該產品篩分精度高、處理量大、結構簡單、耗能少、噪音低、篩網使用壽命長、密封性好、無粉塵溢散、維修方便、可用于流水線生產中的自動化作業。






豆芽從給料機均勻地進入篩分機的進料口,在振動電機的激振下,向出料口方向邊跳動邊篩分,通過多層篩網篩分出數種產品和不合格的篩上、篩下物,分別從各自的出口排出,流入料倉或盛料筒。經過直線篩分之后的豆芽的質量更高,賣相好!
上一篇:1235直線振動篩
下一篇:沒有了

Copyright ©2008-2015直線篩廠家-新鄉市大漢振動機械有限公司 All Rights Reserved 版權所有 備案號:豫ICP備09002479號-16
電話:0373-6373668 15836198876 地址:延津縣森林公園大門西1000米路北

